- 地址:
- 河北省泊頭市富鎮開發區
- 傳真:
- 0317-8041117
- Q Q:
- 28505225
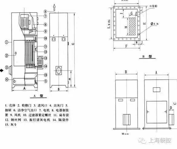
PL單機除塵器(qì)是根據國外引進的除塵設備進行改進(jìn)研製成功的新穎(yǐng)產品,是一種體積小(xiǎo),除(chú)塵效率高的就地除塵機組。該除塵器基本結構由風(fēng)機、過濾(lǜ)器和集(jí)塵器三個部件組成,各部件都安裝在(zài)一個立式框(kuàng)架內,鋼板殼體,外形美觀,結構科學,運行可靠,使用方便。

PL單機除塵器(qì)是一種小型除塵設備,主要用於(yú)庫(kù)頂,庫底,倉頂和輸送(sòng)設備(bèi)的揚塵點的收(shōu)塵。其結構簡單(dān)緊湊,安裝容易,維修(xiū)方便等。
PL單機除塵器(qì)是根據國外引進的除塵設備進行(háng)改進研製(zhì)成功的新穎(yǐng)產品,是一種體積小,除塵效率高的就地除塵機組。該除塵器(qì)基本結構由風機、過濾器和集塵器三個部件組成,各部件都安裝在一(yī)個立式框(kuàng)架內,鋼板殼體,外(wài)形(xíng)美觀,結構科學,運行(háng)可(kě)靠,使用方便。
本單機除塵器廣泛用於鑄造工業、陶(táo)瓷(cí)工業(yè)、玻璃工(gōng)業(yè)以及耐火材料、水泥建材、砂輪製(zhì)造、化工(gōng)製品、機械加工等行(háng)業的除塵。
PL-B型係(xì)列單機除塵設備技術性能(néng) | |
| 型號規格項 目PL-800/BPL-1100/BPL-1600/BPL-2200/B風量M3/H800110016002200資用力MMH2O>80>85>85>100過濾麵(miàn)積M2471012風機電機功率(lǜ)KW1.11.52.23清(qīng)灰電機功率KW0.180.180.180.18過濾風速M/MiN3.332.622.663.05 淨化效率%>99.5>99.5>99.5>99.5 噪聲db(A)<75<75<75<75 外形尺(chǐ)寸A×B×CMM530×520×1040700×580×1100740×580×1240720×660×1330底(dǐ)法蘭寸E×FMM598×588768×648826×666806×746 重 量KG280330470600 注:1.貨用壓力(lì)即機真空度,係指機器可供使用的壓力,是機器進氣口實測靜壓的絕對值。 PL-B型係列單機除塵設備技術性能 型號(hào)規格項 目PL-2700/BPL-3200/BPL-4500/BPL-6000/B風(fēng)量M3/H2700320045006000-8000資用壓力MMH2O>120>100>100>150-120過濾麵積M213.615.321.525風機電(diàn)機功(gōng)率KW445.57.5清灰電機(jī)功(gōng)率KW0.180.180.370.55過濾風速M/MiN3.303.483.403.33-4.5淨化效率%>99.5>99.5>99.5>99.5 噪聲db(A)<75<75<75<80外形尺(chǐ) 寸A×B×CMM760×680×1380790×700×1420900×800×15501200×900×1720底法蘭(lán)尺寸E×FMM864×784894×8041004×9051102×1002 重 量KG5206158151190注:1.貨用壓力即機真空度,係指機器可供使用的壓力,是機器進氣口實測(cè)靜壓的絕對值。 PL-A型係列單機除(chú)塵設備技術性能 型(xíng)號規格(gé) 項 目PL-800/APL-1100/APL-1600/APL-2200/A風量M3/H800110016002200資用壓力MMH2O808585100過濾麵積M2471012進氣口尺寸mmΦ120Φ140Φ150Φ200進氣口中心離底距H318345418433風機電機功率KW1.11.52.23清灰電機功率KW0.180.180.180.18過濾風速M/MiN3.332.622.663.05淨化效率%>99>99>99>99灰(huī)箱容積(1)20304040 噪聲dB(A)75757575 外形尺寸A×B×Cmm530×520×1300700×580×1400740×580×1913720×630×1696重量Kg400550600730PL-A型係列單(dān)機(jī)除塵設備技術性能 型號規格 項 目PL-2700/APL-3200/APL-4500/APL-6000/A風量(liàng)M3/H2700320045006000-8000資用壓力MMH2O120100100150-120過濾麵積M213.615.321.530進氣口尺寸mm200×250200×300200×350220×450進(jìn)氣口中心離底距H4584784781295風機電(diàn)機功率KW445.57.5清灰電機功率KW0.180.180.180.55過濾風速M/MiN3.303.483.493.33×4.5淨化效率%>99>99>9999.5灰箱容(róng)積(1)555570105 噪聲dB(A)<75<75<75<80 外形尺寸A×B×Cmm760×680×1798790×700×1888 900800×2028120×900 重 量Kg85098010401200 |






上一篇:UF單機(jī)袋式除塵器

