- 地址:
- 河北省泊頭市富鎮開發區
- 傳真:
- 0317-8041117
- Q Q:
- 28505225
(1)結構特點
PBC型旁插扁袋式除塵器是采用上進風、下排風、順流外濾式、反吸風清灰(huī)方式,如 圖6-13所示D適用於120t:以下的(de)含塵氣體場合(hé)^ PBC型旁插扁袋式除塵(chén)器的結構(gòu)特點是采用扁袋式旁插安裝,在相同的(de)箱體容積內, 安排(pái)更多的過濾麵積^同時,可以根據處理不同風量的需要,以相同的過濾單元結構,組成不同規格的組(zǔ)合形式D另一特點(diǎn)是清灰采用大氣反吸(xī)風結構, 借助除塵(chén)器的(de)負壓運行,當清灰時*反複啟 閉(bì)反吸(xī)風閥,使濾袋重複吸癟(biě)和鼓脹,以抖 落濾袋外(wài)表(biǎo)麵(miàn)的粉塵,達到清灰目的。

(2)組合式旁插扁袋(dài)式除塵器
①PBC型組合式旁插扁袋式除塵器 PBC型組合(hé)式旁插扁袋式(shì)除塵器的(de)係列有單 元數為2?I2共11個組合式規格,其技術性 能見表6-22。壓力(lì)損(sǔn)失約(yuē)800?1200Pa,入 口粉塵濃度小於30g/m3 ,除塵效率大 於 99.5%。
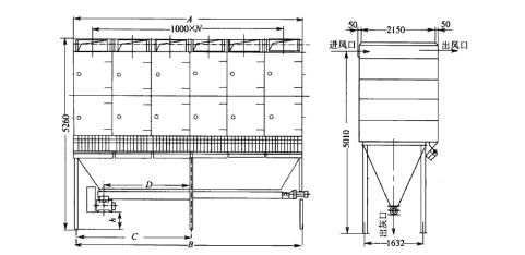
②LYC型旁插脈衝噴吹扁袋(dài)式除塵器 LYC型旁插脈衝噴吹扁袋式除塵器是模塊式 定型產品,在噴吹每個濾袋時其噴吹直徑和 數量,以及脈衝閥的選型都是(shì)固定的。其技 術參數見表6-23,外形尺寸見圖6-14和 表 6-24,


注,1.上述風童以過濾風速為1. 5?2. Om/miti的汁算值,實際(jì)風速應按不同(tóng)的工況設計選擇。 2.清灰所:氣(qì)源為400?SOOkPa,每(měi)閥每次耗(hào)氣裏約為0.05m

圖6-14 LYC型旁插脈衝噴吹扁袋式除塵器
表6~24 LYC型旁插脈(mò)衝(chōng)噴吹扁袋(dài)式除塵醫外形尺寸



