- 地址:
- 河(hé)北省泊頭市富鎮開發區(qū)
- 傳真:
- 0317-8041117
- Q Q:
- 28505225
(1)結構特(tè)點
氣箱(xiāng)式脈衝袋式除塵器主要特(tè)點是在濾(lǜ)袋上口不設文氏管,也沒有噴吹管,是用脈衝閥 直接向淨氣室噴吹壓縮空氣(qì),對濾袋進行淸灰(huī)。適用(yòng)於高濃度粉塵處理,可不設旋(xuán)風(fēng)除塵(chén)器 直接使用。
氣箱式脈衝袋式除塵器本體分隔成若(ruò)幹個箱區,每箱有32、64、96、128條濾袋。並在 每箱側邊出口(kǒu)管道上有一個氣缸帶動的提升閥,其作用是接收(shōu)清灰控製器(qì)發出的信號,逐個 對箱體(tǐ)完成淸灰動作。其結構如圖6-54所示。
氣箱(xiāng)式脈衝袋(dài)式除塵器的濾袋材質,在常溫時一般采用滌綸針刺氈,在高(gāo)溫下選用(yòng)美塔 斯、Pm或氟美斯針刺氈。淸灰控製可選用定時控製,也(yě)可(kě)選用定差壓控製。
(2)型號規格
①LCPMGS型氣箱式脈衝袋式除塵器 LCPMGS型氣箱式脈(mò)衝袋式除塵器規格有32 袋和64袋兩種。LCPMGS-32型氣箱式脈衝袋式除塵器(qì)技術性能見表6-56,外形尺寸見圖 6-55。LCPMGS-64型氣箱式脈衝袋式除塵器技術性能見表(biǎo)6-57,外形尺寸見圖6-56。
②PPDC型氣箱式脈衝袋式除塵器PPDC型氣箱式脈衝袋式除塵器型號有PPDC96型 和PPDC128型,每種型號有(yǒu)單列和雙列兩種規格(gé)。
PPDC96型單列氣箱式脈衝袋式除塵器主要性能見(jiàn)表6-58,主(zhǔ)要尺寸見圖6-57和表6-59。




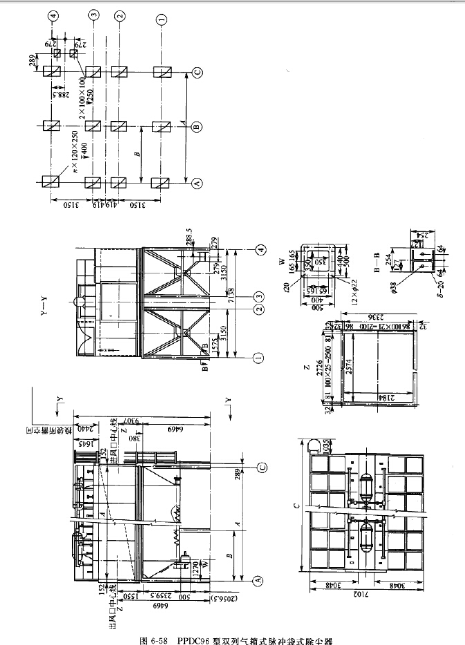
PPDC96型雙列氣箱式脈衝袋式除塵器主要性能見表6-60,主(zhǔ)要尺寸見(jiàn)圖6-58和表6-61。 PPDC128型單列氣箱式脈衝袋(dài)式除塵器主要性能見表6-62,主要尺寸見圖6-59和表6-63。 PPDC128型雙列(liè)氣箱式脈衝袋式除塵器主要性能見表6-64,主要尺寸見圖6-60和表6-65。








上一篇:ZC型回轉反吹扁袋式除塵器
下一篇:電動振打扁袋式除塵器

