聯係我們
18903178757
- 地址:
- 河北省泊頭市富鎮開發區
- 傳真:
- 0317-8041117
- Q Q:
- 28505225
DMC型簡易脈衝袋式除塵(chén)器(qì)
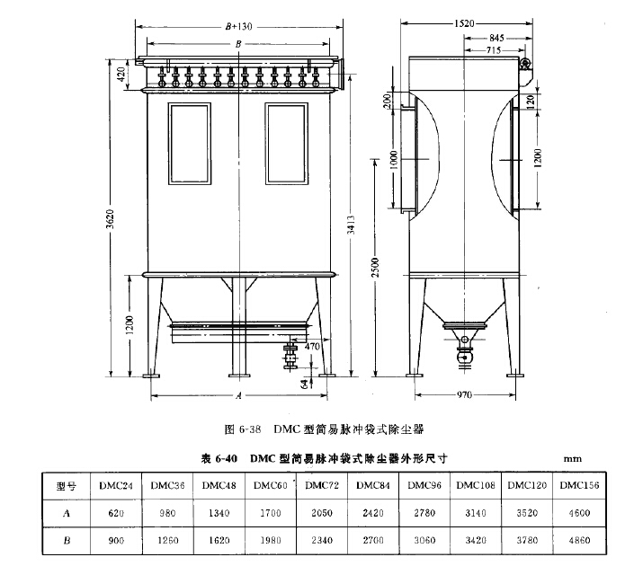
6.5.4簡(jiǎn)易脈衝(chōng)袋式除塵器簡介
DMC型簡易脈衝袋式除塵器(qì)是一種小型(xíng)脈衝袋式除塵器,特點是在原機械控製脈(mò)衝袋 式除塵器的基礎上省去了(le)機構複雜的控製器和控製閥(fá),直接采用電磁閥控製脈衝閥工作。具有結構簡單,操作穩定可靠(kào)的優(yōu)點。
DMC型簡易(yì)脈衝袋(dài)式除塵器共有24?156袋19個規格型號,其技術參數見表6-39» 過濾(lǜ)風速一般在常溫下當含塵濃度為15g/m3以下(xià)時,過濾風速宜在1.5?2m/miiu在(zài)噴 吹(chuī)淸灰氣源壓力為400kPa以上時,脈衝周期可按10?30min確定(dìng)。其外形尺(chǐ)寸見圖6-38 和表6-40。



上一篇:LCPM型側噴式脈衝袋式除塵器
下一篇:MC型脈衝袋式除塵器

