聯係我們
18903178757
- 地址:
- 河北省泊(bó)頭市富鎮開發區
- 傳真:
- 0317-8041117
- Q Q:
- 28505225
MC型(xíng)脈衝袋式除塵(chén)器
MC型(xíng)脈衝袋式除塵器的形式有側(cè)開門結構的 MC型脈衝袋式(shì)除塵(chén)器和上(shàng)揭蓋結構的MC-n型脈衝 袋式除塵器。
(1) MC型脈衝袋式除塵器
MC型脈衝袋式除塵器為側開門結構,規格有24? 120袋,處理氣量自2160?20800m3/h。其中MC-24A 型帶灰鬥,MC-24B型不帶灰鬥6脈衝控製儀有氣動、 電動和機械控製三種。其技術性(xìng)能見表6-33,裝配形(xíng)式
和主要尺寸見圖&23?圖6-26及表6-34和表6-35。



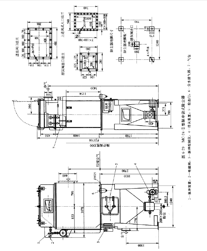
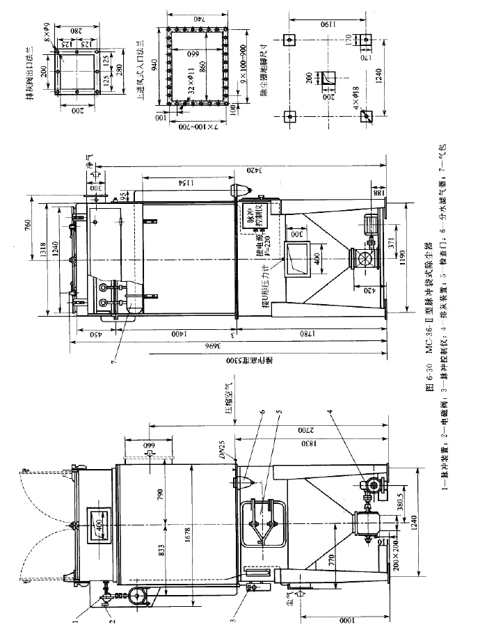
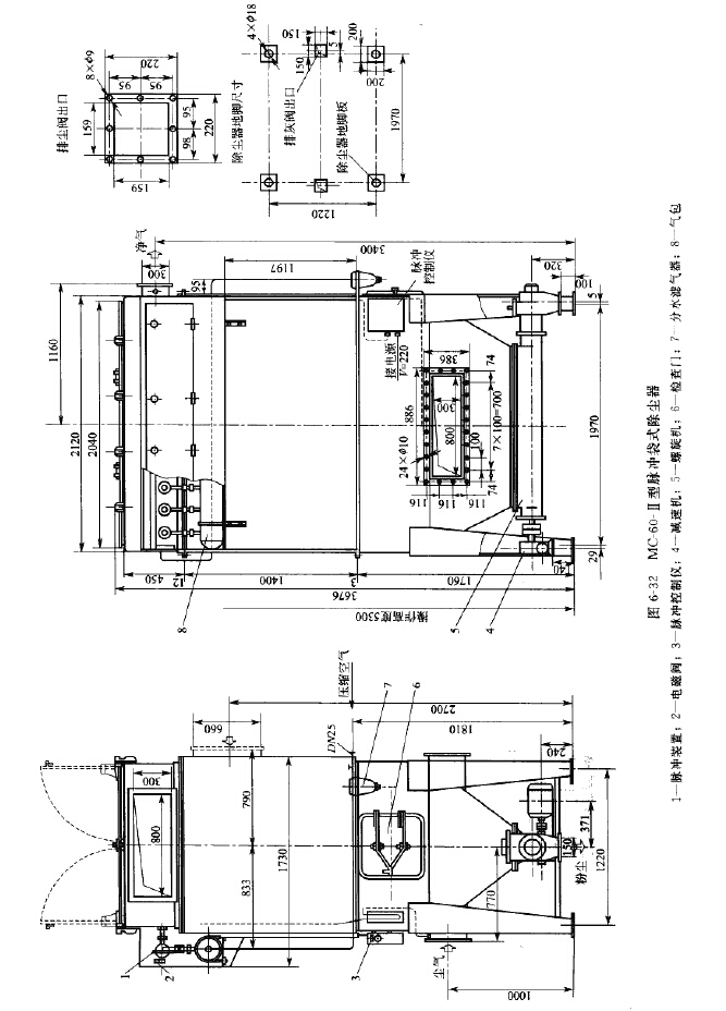
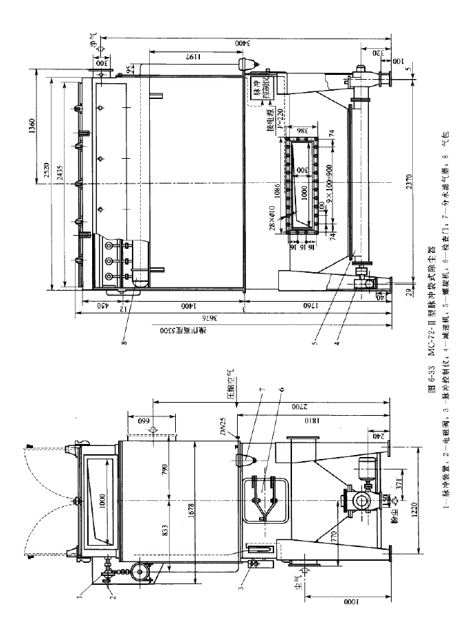
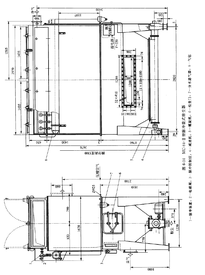
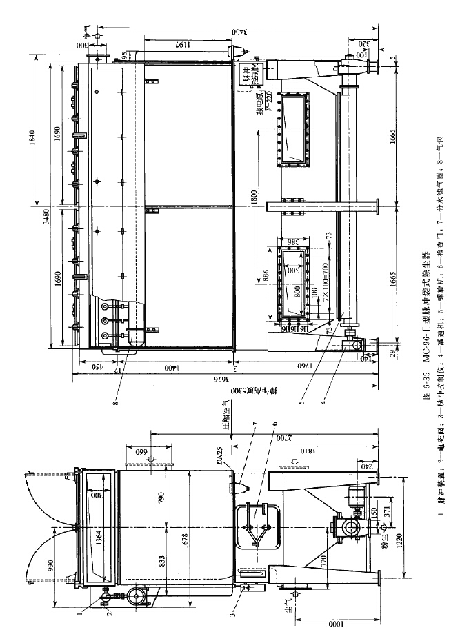
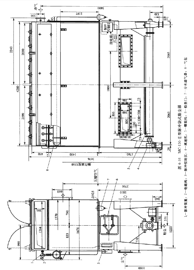
(2) MC-II型脈衝袋式除塵(chén)器
MC-II型脈衝(chōng)袋式除塵器為上(shàng)揭蓋結構,噴(pēn)吹係統增設保護罩和改進的蓋板結構,可露 天設置,並有上、下兩種(zhǒng)進氣方式,如圖S-27和圖^28所示。其裝配形式見表條36,技術 性能(néng)見表6-37,外形和(hé)安裝尺寸見圖6-29?圖質量見表6-38,















上一篇(piān):DMC型簡易脈衝袋(dài)式除塵器
下一篇:木工旋風除塵器

